9-Familienhaus mit einem Entwicklungsgrundstück-Projektpotenzial in Kaufbeuren zu verkaufen

23 Fotos und Anhänge ansehen
R.K.Immobilien Rainer Kresse
Oberer Haldenweg 40, 87439 Kempten
Teilen

Wohnhaus

Wohnhaus

Wohnhaus

Wohnhaus

Wohnhaus

Grundstück bebaubar

Bad Appartement

Wohnen

Wohnen

Wohnen

Wohnen

Wohnen

Wohnen

Wohnen

Bad

Wohnen

Wohnen

Bad

Wohnen

Bad

Wohnen

Bad

Bad

9-Familienhaus mit einem Entwicklungsgrundstück-Projektpotenzial in Kaufbeuren zu verkaufen

Eckdaten

  • Art Mehrfamilienhaus
  • Lage 87600 Kaufbeuren
  • Kaufpreis 2.600.000,00
  • Wohnfläche ca. 740
  • Grundstück ca. 1.426
  • Zimmer 25
  • Kellerfläche ca. 18
  • Baujahr 2023
  • Nutzfläche ca. 120
  • Etagenzahl 2
  • Denkmalschutzobjekt nein
  • Heizungsart Zentralheizung
  • Einbauküche nein
  • Stellplatztyp Aussenstellplatz
  • Stellplatzanzahl 9
  • Vermietet ja
  • Bezugstermin sofort
  • Fahrzeit Hauptbahnhof 10 min
  • Fahrzeit nächste Autobahnauffahrt 20 min
  • Fahrzeit nächster Flughafen 45 min
  • Bodenbelag Vinyl
  • Ausstattung des Bades Dusche, Badewanne, Fenster
  • Zustand Saniert
  • Immobilien-ID 52091
  • Provision 3,57 vom notariellen Kaufpreis inkl. MwSt.

Immobilie

Zum Verkauf steht ein vollvermietetes, umfassend saniertes Mehrfamilienhaus mit neun Wohneinheiten sowie einer zusätzlichen Büro-/Nutzfläche im Kellergeschoss.
 Ein angrenzendes Grundstück mit ca. 1534 m2, sehr gute Entwicklungsmöglichkeit, bebaubar mit 3-5 Wohneinheiten kann zusätzlich erworben werden. Das Objekt befindet sich im Außenbereich von Gutwillen / Kemnat, einem ruhigen und naturnahen Ortsteil von Kaufbeuren, und vereint sofortigen laufenden Cashflow mit klar definiertem Entwicklungs- und Wertsteigerungspotenzial. Das Gebäude wurde im Jahr 2023 kernsaniert und befindet sich in einem sehr gepflegten Zustand. Kurz- bis mittelfristiger Instandhaltungs- oder Sanierungsbedarf ist nicht gegeben. Die funktionalen Grundrisse, die moderne Ausstattung sowie die breite Spanne an Wohnungsgrößen sorgen für eine dauerhaft stabile Vermietbarkeit. Gerne bringen wir Ihnen das Objekt bei einer Besichtigung näher.

Lage

Das Objekt liegt im Außenbereich von Gutwillen / Kemnat, einer ruhigen, grünen Wohnlage mit gleichzeitig guter Anbindung an die Stadt Kaufbeuren.
Innenstadt Kaufbeuren: ca. 10 Minuten
Hauptbahnhof Kaufbeuren: ca. 10 Minuten
Autobahnanschluss: ca. 20 Minuten
Flughafen: ca. 45 Minuten
Öffentlicher Nahverkehr fußläufig erreichbar
Die Kombination aus Ruhe, Natur und Nähe zur städtischen Infrastruktur sorgt für eine hohe Wohnqualität und stabile Nachfrage.

Ausstattung

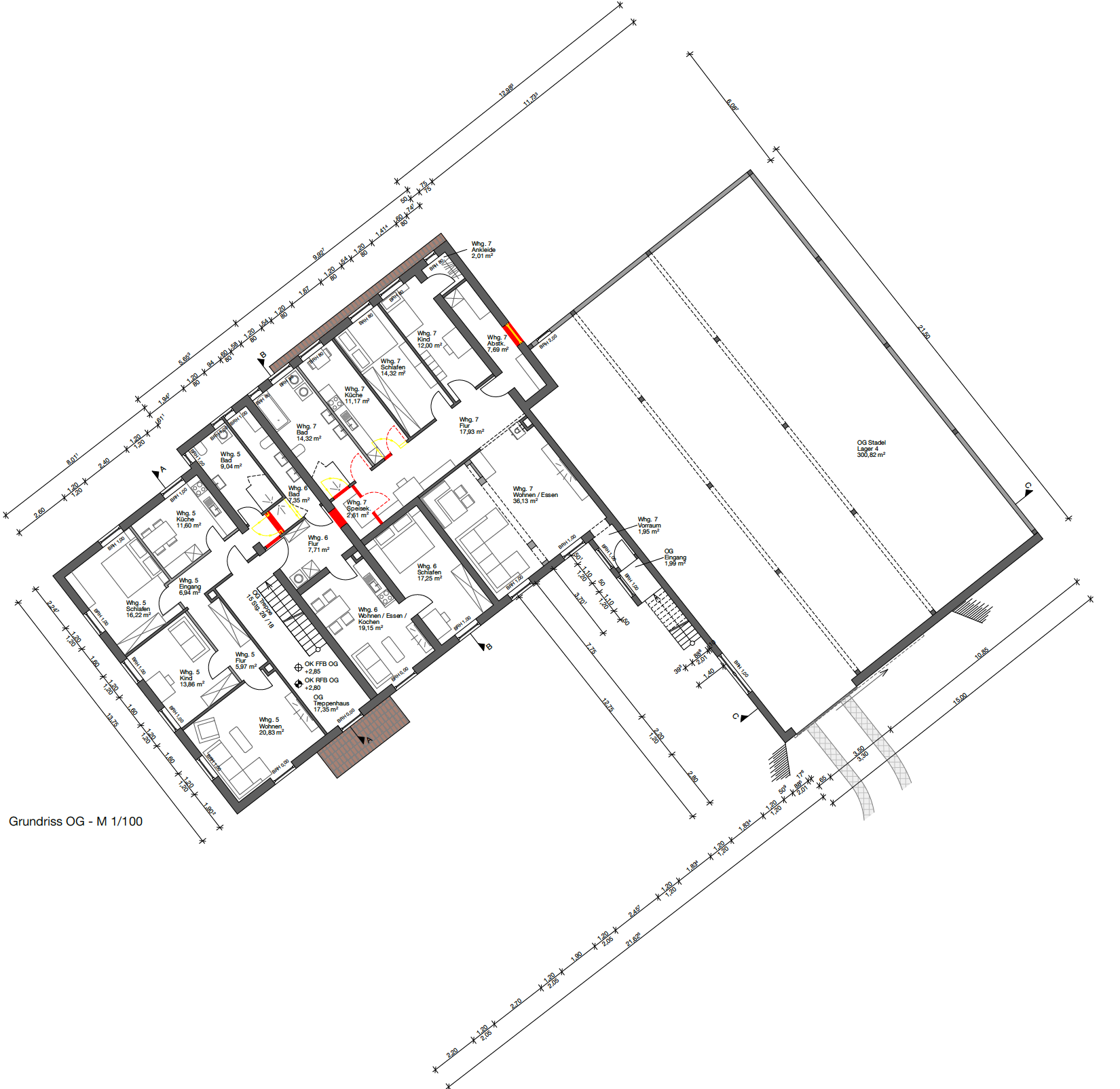
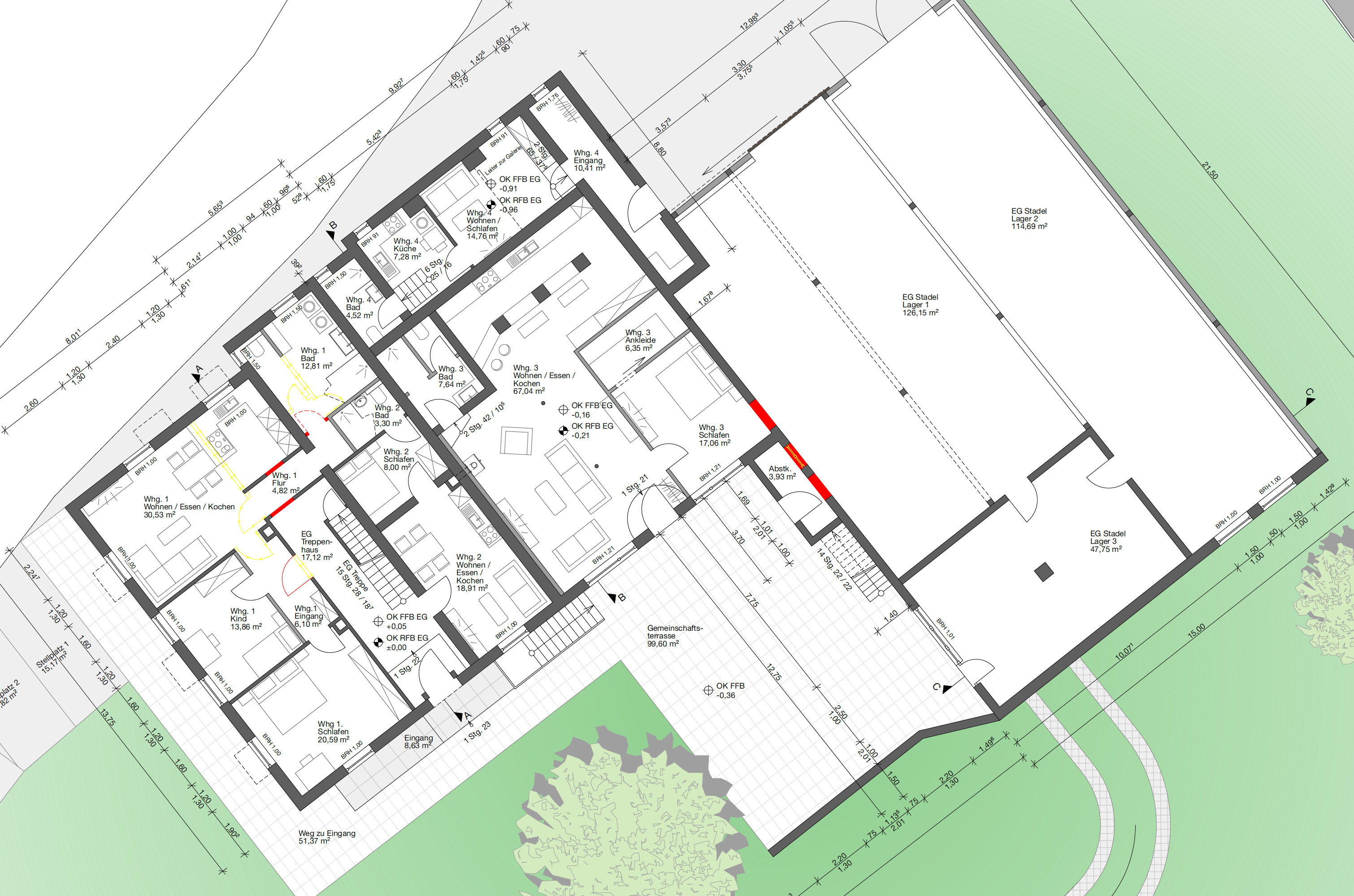
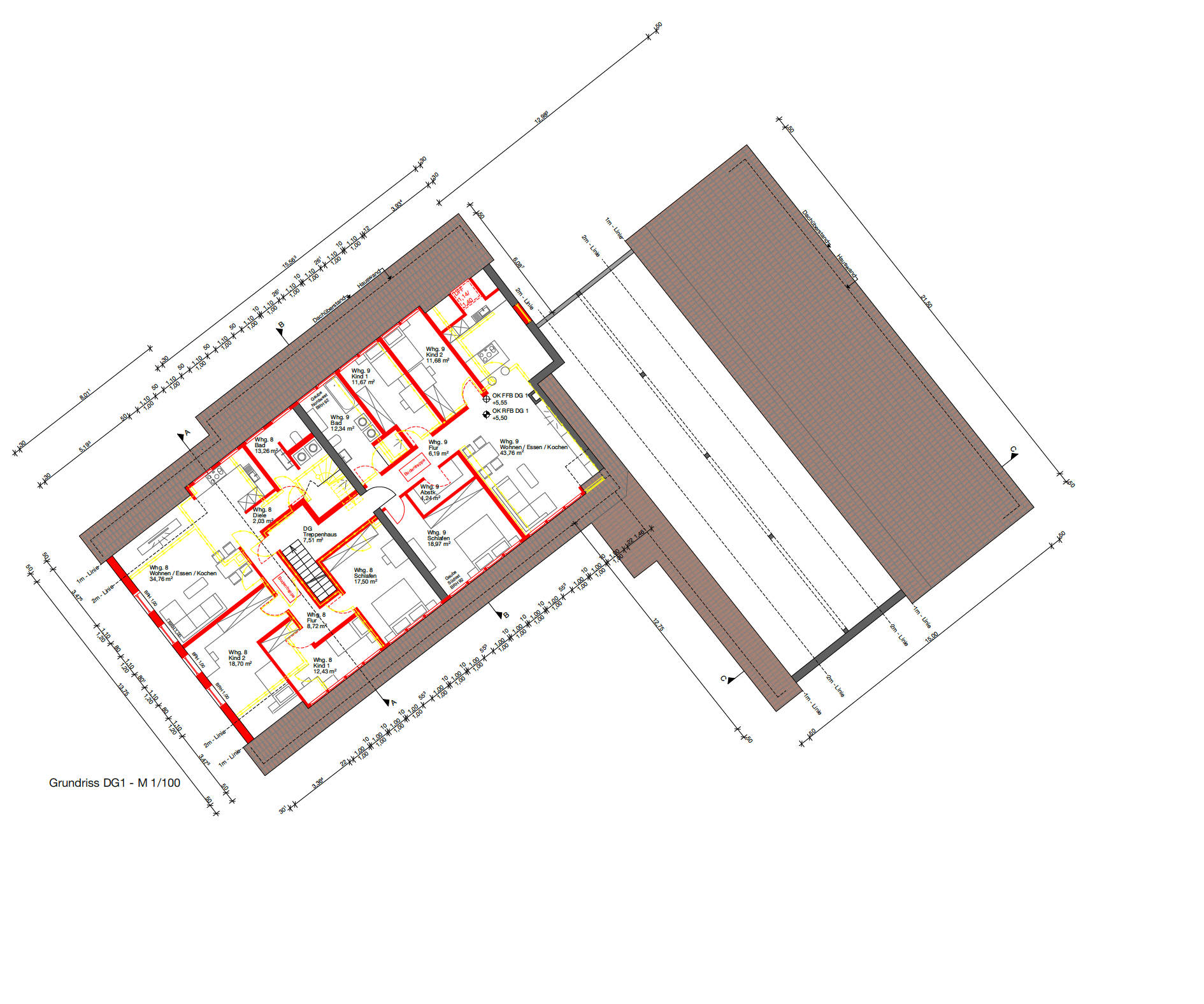
9 Wohnungen
1 Bürozimmer im Kellergeschoss mit Dusche und WC
Keller
Aussenstellplätze
Gemeinschaftsterrasse
Garten
Mieteinnahmen jährlich netto 76.800 €

Keller Vermietet Balkon vorhanden Terrasse vorhanden Einbauküche

Sonstiges

Investment-Highlights
Vollvermietetes Mehrfamilienhaus mit 9 Wohneinheiten
Optional erwerbbares, angrenzendes Baugrundstück (ca. 1.534 m²)
Kernsanierung 2023 – geringer technischer Risiko- und Wartungsbedarf
Ca. 740 m² Wohnfläche
Großzügiges Grundstück mit ca. 1.426 m²
Zusätzliche, planbare Einnahmen durch Photovoltaikanlage
Breite Mieterstruktur und sehr gute Nachvermietbarkeit
Kombination aus laufendem Cashflow und strategischem Entwicklungspotenzial

Kennzahlen & Eckdaten
Kaufpreis: 2.600.000 €
Einheiten: 9 Wohneinheiten + Büro-/Nutzfläche
Wohnfläche gesamt: ca. 740 m²
Grundstücksfläche: ca. 1.426 m²
Vermietungsstand: 100 %
Jahresnettomiete (Wohnen): 76.800 €
Der laufende Bestandsertrag bietet während einer möglichen Projektentwicklung zusätzliche Planungssicherheit
Zusätzliche Einnahmen PV: ca. 2.520 € p.a.
Baujahr / letzte Modernisierung: Kernsanierung 2023

Entwicklungspotenzial
Ein zentraler Mehrwert dieses Investments liegt in den strategischen Erweiterungs- und Entwicklungsmöglichkeiten.

Miet- und Ertragssituation
Das Objekt ist vollständig vermietet. Die Wohnungsgrößen reichen von kompakten Einheiten bis hin zu großzügigen Wohnungen und sprechen damit eine breite Zielgruppe an.
Die Nähe zur Innenstadt Kaufbeuren sowie zum Krankenhaus sorgt für eine nachhaltige und stabile Mietnachfrage.
Die aktuell erzielten Mieten bewegen sich unter dem marktüblichen Niveau für modernisierte Bestandsobjekte in vergleichbarer Lage. Dadurch ergibt sich mittelfristig organisches Mietsteigerungspotenzial, insbesondere im Rahmen von Neuvermietungen oder moderaten Anpassungen im Bestand.
Zusätzlich generiert eine auf dem Dach installierte Photovoltaikanlage laufende Einnahmen durch Einspeisung in das öffentliche Netz. Diese wirken stabilisierend auf den Gesamtertrag des Objekts.

Mietentwicklung
Durch marktübliche Anpassungen und Neuvermietungen besteht die Möglichkeit, die laufenden Erträge schrittweise zu optimieren, ohne wesentliche zusätzliche Investitionen.

Nachverdichtung / Neubau
Ein angrenzendes Grundstück mit ca. 1.534 m² kann optional zusätzlich erworben werden. Dieses eignet sich nach Vorprüfung für die Bebauung mit einem 3–5-Familienhaus.
Hieraus ergeben sich unterschiedliche strategische Optionen, unter anderem:
eigene Projektentwicklung
Teilung und Einzelveräußerung
langfristige Wertsteigerung durch Landbanking
Dieses Entwicklungspotenzial stellt den wesentlichen Werthebel für strategisch orientierte Investoren dar.

Energieausweisangaben

A+
A
B
C
D
E
F
G
H
  • Enerigeausweistyp Bedarfsausweis
  • Energiekennwert 106 KWh(m²*a)
  • Energieeffizienzklasse D
  • Energieausweis erstellt am 29.06.2023
  • Energieausweis gültig bis 28.06.2033
  • Heizungsart Zentralheizung
  • Befeuerung / Energieträger Öl

Grundrisse

Wie können wir Ihnen behilflich sein?

Herzlichen Dank für Ihre Anfrage.

Wir werden diese so schnell wie möglich bearbeiten.

Wie können wir Ihnen behilflich sein?
* Pflichtfeld